
İç Mekan Tasarımı . 2008 . 400m2 . İstanbul
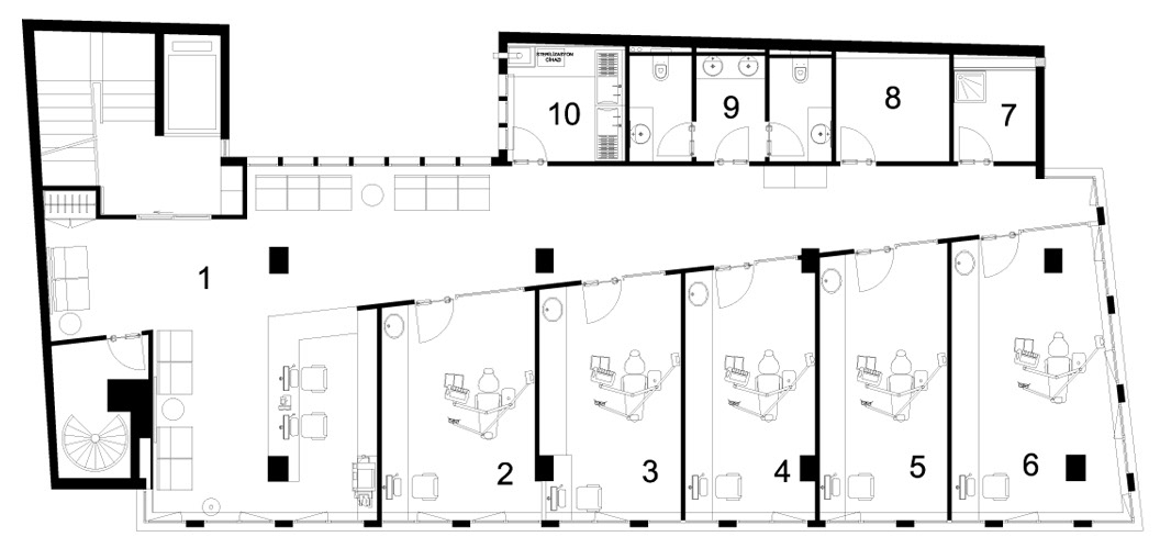
Mevcut ofis katının 6 ünitli diş kliniğine dönüştürülmesi için mimari konsept, uygulama projesi ve ihale dosyası hazırlanmıştır. Kat girişini genişletmek ve bekleme alanı yaratmak için ana bölücü duvar açılı konumlandırılmış, bu duvarda yaratılan şeffaf yüzeyler ile geçiş alanlarının gün ışığından yararlanması sağlanmıştır.
The existing office floor is converted into a dental clinic with 6 units. Concept, construction projects and technical documents are prepared. A translucent main partition is wall is designed in an angle to create more space for the waiting area & to provide more light for the corridors.



1 Giriş Holü; 2-3-4-5-6 Muayenehane; 7 Temizlik Odası; 8 Röntgen Odası; 9 Wc; 10 Sterilizasyon; 11 Bilgi İşlem; 12 Ofis; 13 Doktor Dinlenme Odası; 14 Muayenehane; 15 Ofis; 16 Mutfak



İşveren: İş GYO
Mekanik Proje: Öz Mühendislik
Elektrik Proje: Bora Teknik
Uygulama: Diem Mimarlık Mühendislik