 
     İç Mekan Tasarımı  .  2012 .  1200m2  .  Bakü
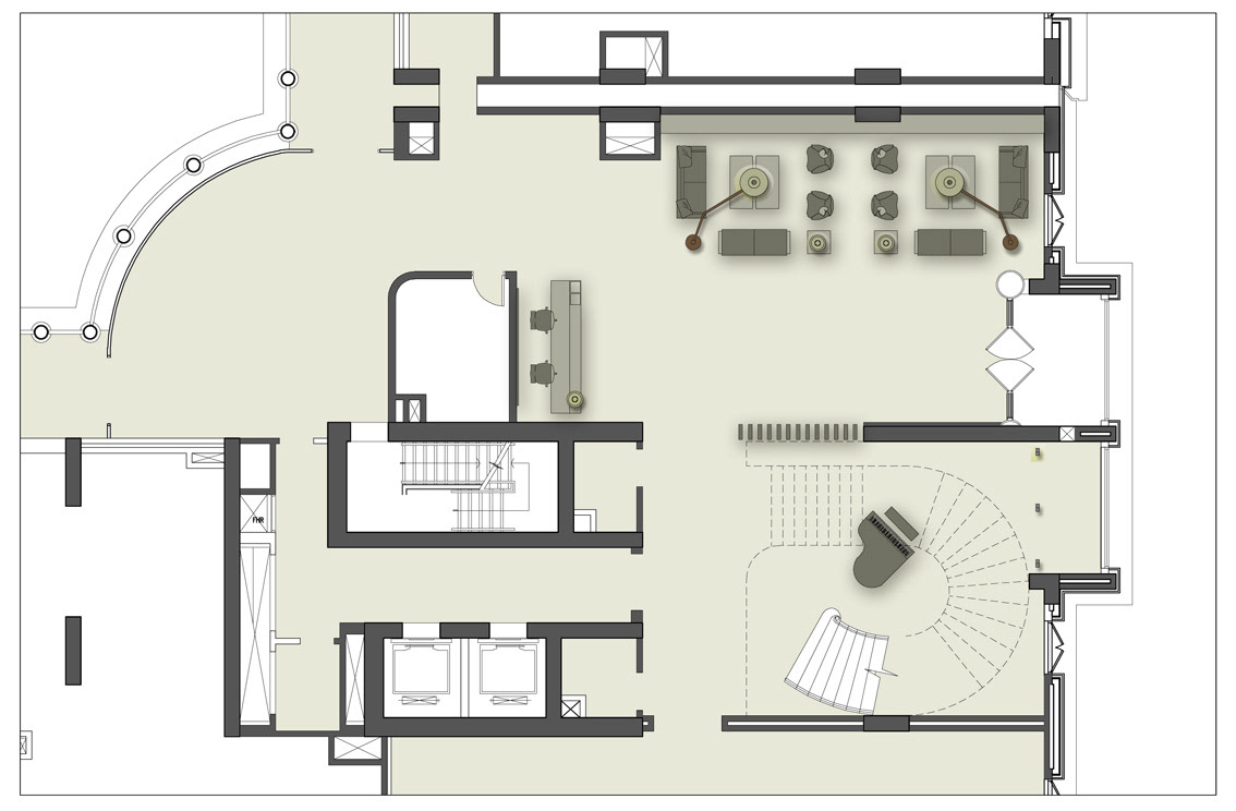
Neoklasik etkili yeni yapının iş merkezi bölümünün ortak kullanım alanları iç mekan tasarımıdır. Merkezin giriş ve kat holleri, koridorlar, servis alanları ile spor merkezi binanın karakterine uygun bir dilde yeniden tasarlanmıştır.
Interior concept for common areas of a neo-classic business center. Entrance & floor halls, corridors, service ares & the gym is designed according to general concept of the existing building.
 
     Giriş Holü (alt lobi) Planı
 
      
     Üst Lobi Planı
 
      
      
     Restoran Planı
 
      
      
      
      
      
     İşveren: E&Ç Mimarlık
