İç Mekan Projesi  .  2024 .  400m2  . İstanbul
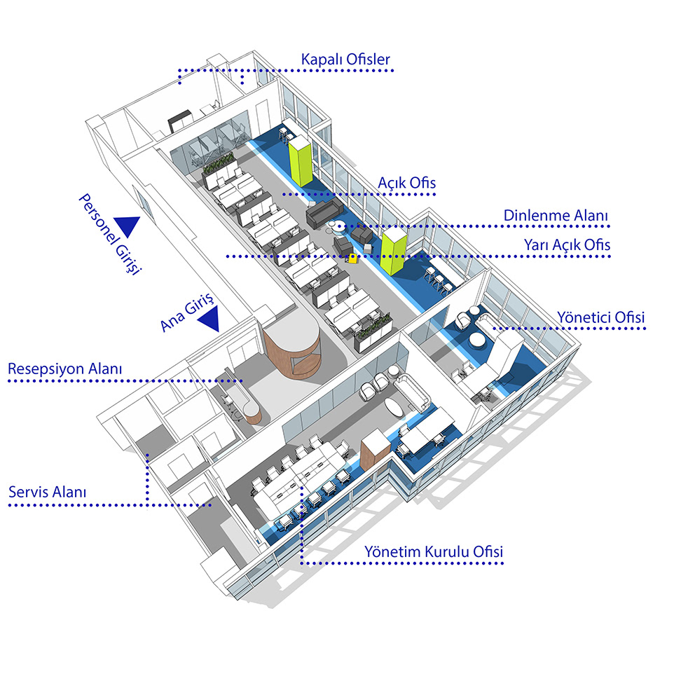
Ataşehir'de İstanbul Finans Merkezi'nde yer alan ofis katı, 30 personeli olan denizcilik sigortası ofisi olarak tasarlanmıştır. Geneli açık ofis olarak tasarlanan mekanda, yönetici ofisleri, toplantı odaları, denetim ofisleri gibi kapalı ofisler de düşünülmüştür. Malzeme ve detay tasarımında denizcilik ve doğa temaları kullanılmıştır.
Interior design of a marine insurance company with 30 employees situated in the new financial district (IFM) in Ataşehir. The design is an open office plan surrounded by executive offices, meeting rooms & auditing rooms. Detail & material concept is based on marine & nature elements.
İşveren: Türk P&I Sigorta
Mekanik Proje: Shn Mühendislik
Elektrik Proje: Küp Mühendislik
Back to Top