Mimari Tasarım  .  2012 .  12000m2  .  Ankara
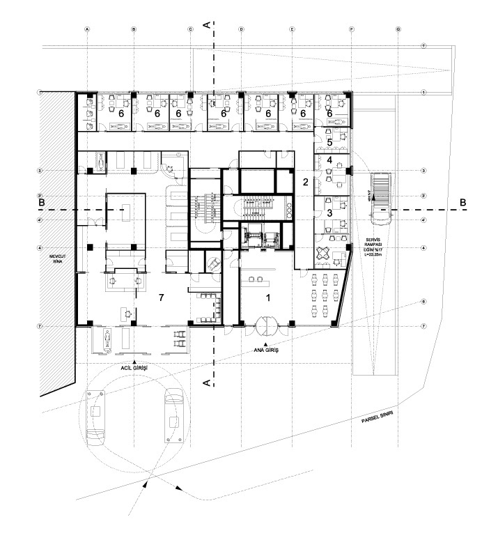
Eskişehir otoyolu üzerinde bulunan mevcut hastane binasının artan ihtiyaçlarını karşılamak üzere tasarlanan ek binadır. 7 adet bodrum katı olan zemin + 5 katlı binada; ofisler, acil servis birimi, poliklinikler, konferans ve eğitim salonları, yemekhane ve teknik birimler bulunmaktadır. Ek yapının mimarisi, mevcut yapının mimarisine ve hastanenin kurumsal kimliğine uygun dilde kurgulanmıştır.
Architectural design for an administrative addition to an existing hospital situated on Eskişehir highway. The 5 storey building with 7 basement floors is designed to shelter offices, outpatient & emergency units, conference & seminar rooms, dining & technical areas. The new concept is developed with reference to the existing building & hospital's corporate identity.
1 Giriş holü; 2 Koridor; 3 Hemşire Hizmetleri; 4 Doktor Odası; 5 Hemşire Odası; 6 Muayene Odası; 7 Acil Servis
İşveren: Bayındır Sağlık Grubu
Statik Proje: Oğuz Uyan
Mekanik ve Elektrik Projeler: Mira Mühendislik
Back to Top